Kołek do mocowania izolacji trzpień tworzywowy z krótką strefą rozpierania WKRĘT-MET LTX 10x200mm - 200 szt.
Numer referencyjny: LTX-10200
Kołki do mocowania izolacji trzpień tworzywowy z krótką strefą rozpierania WKRĘT-MET LTX 10x200mm - 200 szt.
Kołki do styropianu 200 Plast LTX 10x200/200 szt.
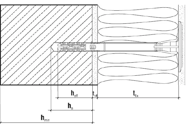
Zastosowanie kołków do styropianu LTX 10x200 wykonanych z polietylenu, z trzpieniem tworzywowym wykonanym z poliamidu, (który dodatkowo wzmocniony jest włóknem szklanym) stanowi skuteczne rozwiązanie dla przenoszenia obciążeń siły ssania wiatru oraz zapewnia niezbędne zamocowanie mechaniczne dla całego systemu. Wskazane jest stosowanie łączników LTX 10 w przypadku styropianu EPS i XPS. Produkt ten jest również odpowiedni do instalacji w różnego rodzaju podłożach, takich jak: beton zwykły, cegła ceramiczna pełna, cegła ceramiczna drążona, cegła silikatowa, pustak ceramiczny, elementy na lekkim kruszywie oraz gazobeton. Łączniki LTX-10 posiadają Europejską Ocenę Techniczną: ETA-16/0509, co jest gwarancją odpowiedniej jakości i skuteczności.
Kołki do styropianu 200 Plast LTX 10x200 - zalety
Wbijane łączniki do styropianu 200 PLAST LTX 10x200 wyróżniają się wieloma pozytywnymi cechami. Trzpień tworzywowy jest wzmocniony włóknem szklanym. Charakteryzuje go krótka strefa rozpierania. Konstrukcja łba trzpienia ułatwia montaż. Uszczelnia połączenie trzpień – koszulka łącznika. „Kieszenie” klejowe na kołnierzu dociskowym umożliwiają idealną przyczepność zaprawy klejowej. Istotna jest też odpowiednia sztywność kołnierza dociskowego. Gwarancją tego jest specjalna konstrukcja koszulki. Kołki do styropianu 200 PLAST LTX 10x200 mogą być montowane we wszystkich kategoriach podłoży z zachowaniem wysokich parametrów wytrzymałości.
Jak zamontować kołki do styropianu 200 Plast LTX 10x200?
Bardzo prosto! Na początek trzeba pamiętać o dobraniu odpowiedniej długości łącznika (tutaj mamy długość wynoszącą 200 mm). Musi być ona tak dobrana, aby strefa rozpierania znajdowała się w materiale konstrukcyjnym ściany. Przed montażem powinniśmy odpowiednio przygotować podłoże – zgodnie z zaleceniem producenta systemu dociepleniowego ETICS. Płyty termoizolacyjne muszą być zamocowane za pomocą zaprawy klejowej, średnica otworów powinna być zgodna ze średnicą łączników. Następnie oczyszczamy otwory w materiałach pełnych ze zwiercin ruchem posuwisto-zwrotnym. Tę czynność wykonujemy przy pomocy wiertła o zmniejszonych obrotach i powtarzamy ją 4 razy. Otwory te powinny być głębsze o minimum 10 mm od głębokości zakotwienia łączników. Do wiercenia otworów w podłożach z pustkami i gazobetonie nie wolno używać udaru, ponieważ jego użycie może spowodować rozbicie ścianek wewnętrznych podłoża, a to z kolei zmniejszy odporność łączników na wyrywanie. Trzeba przymocować łączniki w miejscu pokrywającym się z miejscem ułożenia zaprawy klejowej na płycie termoizolacyjnej, następnie osadzić korpus łącznika w taki sposób, aby zlicować talerzyk dociskowy z materiałem termoizolacyjnym. Później już tylko wystarczy wbić trzpień łącznika. Spowoduje to jego trwałe zamocowanie. Nie należy dobijać łączników z wbitym trzpieniem, gdyż może to powodować ich pękanie. Kołki styropianowe LTX 10 można również montować w wyfrezowanych otworach frezem do styropianu WK-FT (montaż zagłębiony). Po zakończonym montażu powinniśmy zamaskować miejsce mocowania krążkiem ze styropianu KS/KSG (montaż zagłębiony).
- Opis produktu
Kołki do mocowania izolacji trzpień tworzywowy z krótką strefą rozpierania WKRĘT-MET LTX 10x200mm - 200 szt.
Kołki do styropianu 200 Plast LTX 10x200/200 szt.
Zastosowanie kołków do styropianu LTX 10x200 wykonanych z polietylenu, z trzpieniem tworzywowym wykonanym z poliamidu, (który dodatkowo wzmocniony jest włóknem szklanym) stanowi skuteczne rozwiązanie dla przenoszenia obciążeń siły ssania wiatru oraz zapewnia niezbędne zamocowanie mechaniczne dla całego systemu. Wskazane jest stosowanie łączników LTX 10 w przypadku styropianu EPS i XPS. Produkt ten jest również odpowiedni do instalacji w różnego rodzaju podłożach, takich jak: beton zwykły, cegła ceramiczna pełna, cegła ceramiczna drążona, cegła silikatowa, pustak ceramiczny, elementy na lekkim kruszywie oraz gazobeton. Łączniki LTX-10 posiadają Europejską Ocenę Techniczną: ETA-16/0509, co jest gwarancją odpowiedniej jakości i skuteczności.
Kołki do styropianu 200 Plast LTX 10x200 - zalety
Wbijane łączniki do styropianu 200 PLAST LTX 10x200 wyróżniają się wieloma pozytywnymi cechami. Trzpień tworzywowy jest wzmocniony włóknem szklanym. Charakteryzuje go krótka strefa rozpierania. Konstrukcja łba trzpienia ułatwia montaż. Uszczelnia połączenie trzpień – koszulka łącznika. „Kieszenie” klejowe na kołnierzu dociskowym umożliwiają idealną przyczepność zaprawy klejowej. Istotna jest też odpowiednia sztywność kołnierza dociskowego. Gwarancją tego jest specjalna konstrukcja koszulki. Kołki do styropianu 200 PLAST LTX 10x200 mogą być montowane we wszystkich kategoriach podłoży z zachowaniem wysokich parametrów wytrzymałości.
Jak zamontować kołki do styropianu 200 Plast LTX 10x200?
Bardzo prosto! Na początek trzeba pamiętać o dobraniu odpowiedniej długości łącznika (tutaj mamy długość wynoszącą 200 mm). Musi być ona tak dobrana, aby strefa rozpierania znajdowała się w materiale konstrukcyjnym ściany. Przed montażem powinniśmy odpowiednio przygotować podłoże – zgodnie z zaleceniem producenta systemu dociepleniowego ETICS. Płyty termoizolacyjne muszą być zamocowane za pomocą zaprawy klejowej, średnica otworów powinna być zgodna ze średnicą łączników. Następnie oczyszczamy otwory w materiałach pełnych ze zwiercin ruchem posuwisto-zwrotnym. Tę czynność wykonujemy przy pomocy wiertła o zmniejszonych obrotach i powtarzamy ją 4 razy. Otwory te powinny być głębsze o minimum 10 mm od głębokości zakotwienia łączników. Do wiercenia otworów w podłożach z pustkami i gazobetonie nie wolno używać udaru, ponieważ jego użycie może spowodować rozbicie ścianek wewnętrznych podłoża, a to z kolei zmniejszy odporność łączników na wyrywanie. Trzeba przymocować łączniki w miejscu pokrywającym się z miejscem ułożenia zaprawy klejowej na płycie termoizolacyjnej, następnie osadzić korpus łącznika w taki sposób, aby zlicować talerzyk dociskowy z materiałem termoizolacyjnym. Później już tylko wystarczy wbić trzpień łącznika. Spowoduje to jego trwałe zamocowanie. Nie należy dobijać łączników z wbitym trzpieniem, gdyż może to powodować ich pękanie. Kołki styropianowe LTX 10 można również montować w wyfrezowanych otworach frezem do styropianu WK-FT (montaż zagłębiony). Po zakończonym montażu powinniśmy zamaskować miejsce mocowania krążkiem ze styropianu KS/KSG (montaż zagłębiony).
- Parametry techniczneMarkaPodmiot odpowiedzialny za ten produkt na terenie UEKlimas Sp. z. o.WięcejAdres: Wincentego Witosa 135/137Kod pocztowy: 42-233Miasto: Kuźnica KiedrzyńskaKraj: PolskaAdres email: biuro@wkret-met.com.plSymbolLTX-10200Kod producenta5907704471523Średnica Ødnom [mm]10Kod ERP0032505Długość [mm]200
- Do pobraniaKarta Techniczna Pobierz
Nie wiesz jaki produkt wybrać?
Skorzystaj z pomocy naszych ekspertów, którzy chętnie Ci pomogą w każdej sprawie. Po prostu zadzwoń lub napisz do nas.













